highlights

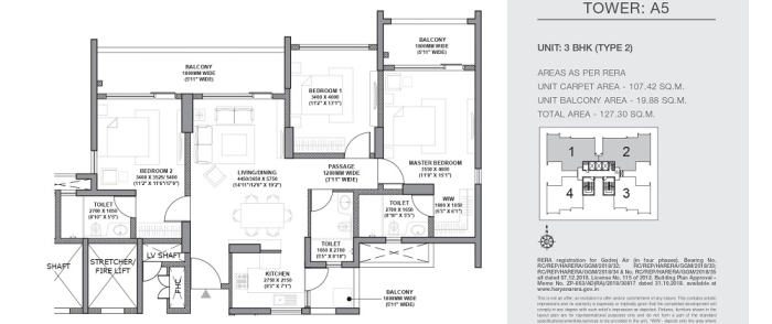
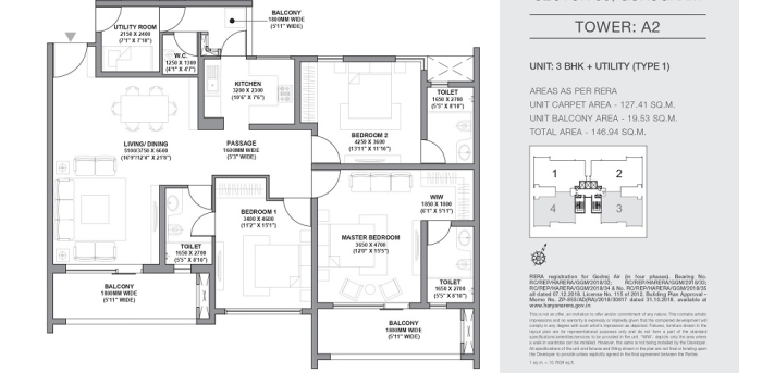
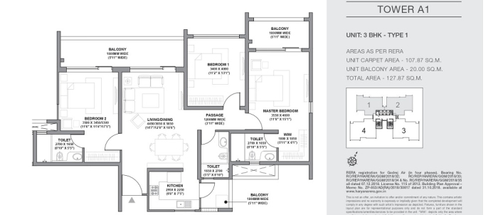
  • 3 BHK & 4 BHK Homes
  • Excellent Connectivity - 2 Minute from NH 8
  • 1673 sq. mt. Clubhouse with Entertainment and Leisure Facilities
  • 101 Activities to Live Inspired
  • Surrounded by 4 Golf Courses
  • IGBC Silver Pre-Certified

LOCATION BENEFITS

  • EXCELLENT ACCESS TO 4 MAJOR EXPRESSWAYS:- NH-48, KMP expressway, Dwarka expressway, Pataudi Road
  • Well connected to world of opportunities as Educational hubs, hospitals, retail, hotels, etc.
  • seamless connectivity from the indira gandhi international airport
  • upcoming metro station in close proximity
  • the upcoming commercial hub in sector 88 is in close proximity
  • Well connected to world of opportunities as Educational hubs, hospitals, retail, hotels, etc.
   TYPE   SIZE PRICE
   2 BHK 1046 Sq-ft On Request
   3 BHK 1590 sq.ft On Request
    4 BHK 1960 Sq-ft On Request

SPECIFICATIONS

  • Drawing/Dining: Vitrified Tiles, Plastic Paint, Modular Door, UPVC/Aluminium Window, VRF Air Conditioning
  • Bedroom: Vitrified Tiles, Plastic Paint, OBD/Acrylic Distemper Ceiling, Laminated/Skin Door
  • Kitchen: Dado up to 2 above Counter and plastic paint, OBD/Acrylic Distemper Ceiling, Modular kitchen Chimney & hob, SS Sink with fixtures
  • Toilets: matt Finish Tiles, Plastic paint, MR board Ceiling, Vanity Counter

LOCATION

ENQUIRE NOW